Carlos Ring
Search Listings

168 Azure Court, Daytona Beach, FL

NEXT
PREV
$520,000

($261/sqft)

List Status: Pending
168 Azure Court
Daytona Beach, FL 32124


3 beds
2 baths
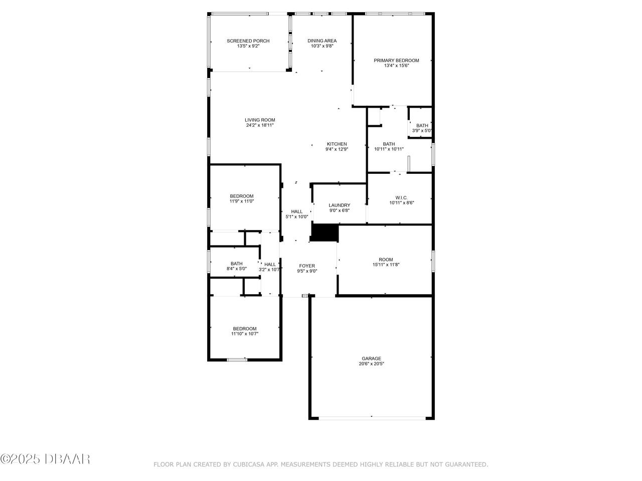
1993 living sqft
Top Features
  • Subdivision: Mosaic
  • Built in  2023
  • Single Family Residence
Description
Welcome home to the beautiful ICI Avery II floorplan - a 3 bedroom, 2 bathroom plus flex room dream. Seller offering a $10,000 credit to the buyer with an accepted offer that can be used for a rate buy down or closing cost assistance! Just wait until you see all of the natural light! No expense was spared when crafting this home which includes over $42,500 in upgrades AFTER going to the design center and moving in (upgrades attached - please reach out for any questions!). Automatic indoor shade provides privacy between the main living area and guest bedrooms turn the front bedrooms and bathroom into a guests private space! Custom shade that can be adjusted down over the triple tray sliding glass doors in the living room allow for a home movie night as this can double as a projector screen! This pie shaped lot (survey attached!) goes far beyond the standard boundaries of a beautifully landscaped backyard and extends long behind the fence. This home has more value than can be described, you have to see it for yourself!, Welcome home to the beautiful ICI Avery II floorplan - a 3 bedroom, 2 bathroom plus flex room dream. Seller offering a $10,000 credit to the buyer with an accepted offer that can be used for a rate buy down or closing cost assistance! Just wait until you see all of the natural light! No expense was spared when crafting this home which includes over $42,500 in upgrades AFTER going to the design center and moving in (upgrades attached - please reach out for any questions!). Automatic indoor shade provides privacy between the main living area and guest bedrooms turn the front bedrooms and bathroom into a guests private space! Custom shade that can be adjusted down over the triple tray sliding glass doors in the living room allow for a home movie night as this can double as a projector screen! This pie shaped lot (survey attached!) goes far beyond the standard boundaries of a beautifully landscaped backyard and extends long behind the fence.
Property Details
Additional Information
Area Major
33 - ISB to LPGA W of 95
Area Minor
33 - ISB to LPGA W of 95
Accessibility Features Walker-Accessible Stairs
Grip-Accessible Features
Appliances Other5
Dishwasher, Microwave, Refrigerator, Dryer, Disposal, Ice Maker, Electric Range, Washer
Association Amenities Other2
Maintenance Grounds, Clubhouse, Management - Off Site, Fitness Center, Pool, Children's Pool
Bathrooms Total Decimal
2.0
Bathrooms Total Integer
2
Construction Materials Other8
Stucco
Contract Status Change Date
2025-10-04
Cooling Other7
Central Air
Current Use Other10
Single Family
Currently Not Used Accessibility Features YN
Yes
Currently Not Used Bathrooms Total
2.0
Currently Not Used Building Area Total
1993.0
Currently Not Used Carport YN
No
Currently Not Used Garage Spaces
2.0
Currently Not Used Garage YN
Yes
Currently Not Used Living Area Source
Owner
Currently Not Used New Construction YN
No
Documents Change Timestamp
2025-08-01T14:47:06Z
Exterior Features Other11
Impact Windows, Storm Shutters, Other
Fencing Other14
Back Yard, Privacy, Vinyl
Flooring Other13
Tile, Carpet, Other
Foundation Details See Remarks2
Block, Slab
General Property Information Accessory Dwelling Unit YN
No
General Property Information Association Fee
120.0
General Property Information Association Fee Frequency
Monthly
General Property Information Association YN
Yes
General Property Information CDD Fee YN
No
General Property Information Directions
From I95/LPGA (exit 265) drive West. In 1.6 mi turn Right onto Tournament Dr. In .8 mi turn Left onto Mosaic Blvd. In .2 mi turn Right onto Azure Ct. Destination is on your Right in 900 feet.
General Property Information Homestead YN
No
General Property Information List PriceSqFt
260.91
General Property Information Property Attached YN2
No
General Property Information Senior Community YN
No
General Property Information Stories
1
General Property Information Waterfront YN
No
Heating Other16
Central
Interior Features Other17
Breakfast Bar, Open Floorplan, Primary Bathroom - Shower No Tub, Smart Thermostat, Split Bedrooms, Walk-In Closet(s)
Laundry Features None10
In Unit
Levels Three Or More
One
Listing Contract Date
2025-07-25
Listing Terms Other19
Cash, FHA, Conventional, VA Loan
Location Tax and Legal Country
US
Location Tax and Legal Elementary School
Champion
Location Tax and Legal High School
Mainland
Location Tax and Legal Middle School
Hinson
Location Tax and Legal Parcel Number
5218-01-00-0290
Location Tax and Legal Tax Annual Amount
6584.37
Location Tax and Legal Tax Legal Description4
7 17 18 15-32 LOT 29 MOSAIC PHASE 1A MB 58 PGS 162-170 PER OR 7594 PG 2667 PER OR 8373 PG 1075
Location Tax and Legal Tax Year
2024
Location Tax and Legal Zoning Description
Residential
Lock Box Type See Remarks
Combo
Lot Features Other18
Cul-De-Sac
Lot Size Area
0.18
Lot Size Square Feet
7627.36
Lot Size Units
Acres
Major Change Timestamp
2025-10-04T17:59:27Z
Major Change Type
Status Change
Mls Status
Pending
Modification Timestamp
2025-10-04T17:59:53Z
Off Market Date
2025-10-03
On Market Date
2025-07-26
Patio And Porch Features Wrap Around
Rear Porch, Screened
Pets Allowed Yes
Cats OK, Dogs OK
Possession Other22
Close Of Escrow
Purchase Contract Date
2025-10-03
Roof Other23
Shingle
Room Types Bedroom 1 Level
Main
Room Types Bedroom 2 Level
Main
Room Types Bedroom 3 Level
Main
Room Types Bonus Room Level
Main
Room Types Dining Room Level
Main
Room Types Family Room Level
Main
Room Types Kitchen Level
Main
Room Types Laundry Level
Main
Rooms Total
8
Security Features Other26
Security System Owned, Fire Alarm
Sewer Unknown
Public Sewer
StatusChangeTimestamp
2025-10-04T17:59:24Z
Utilities Other29
Water Connected, Electricity Connected, Cable Available, Sewer Connected, Other
Water Source Other31
Public
Neighborhood Map
Popup

Property Photos
Listing Photo
Listing Photo
Listing Photo
Listing Photo
Listing Photo
Listing Photo
Listing Photo
Listing Photo
Listing Photo
Listing Photo
Listing Photo
Listing Photo
Listing Photo
Listing Photo
Listing Photo
Listing Photo
Listing Photo
Listing Photo
Listing Photo
Listing Photo
Listing Photo
Listing Photo
Listing Photo
Listing Photo
Listing Photo
Listing Photo
Listing Photo
Listing Photo
Listing Photo
Listing Photo
Listing Photo
Listing Photo
Listing Photo
Listing Photo
Listing Photo
Listing Photo
Listing Photo
Listing Photo
Listing Photo
Listing Photo
Listing Photo
Listing Photo
Listing Photo
Listing Photo
Listing Photo
Listing Photo
Listing Photo
Listing Photo
Listing Photo
Listing Photo
Listing Photo
Listing Photo
Listing Photo
Listing Photo
Listing Photo
Listing Photo
Listing Photo
Listing Photo
Listing Photo
Listing Photo
Listing Photo
Listing Photo
Listing Photo
Listing Photo
Listing Photo
Listing Photo
Listing Photo
Listing Photo
Listing Photo
Listing Photo
Listing Photo
Listing Photo
Listing Photo
Listing Photo
Listing Photo
Listing Photo
Listing Photo
Listing Photo
Listing Photo
Listing Photo
Listing Photo
Listing Photo
Listing Photo
Listing Photo
Listing Photo
Listing Photo
Listing Photo
Listing Photo

MLS #1216081 Listing courtesy of 1st Class Real Estate Reagan Realty provided by Daytona Beach Area Association Of REALTORS.

Similar Listings

$469,900
235 Coral Reef Way
Daytona Beach
3BR/2BA
| Active
$475,000
586 Lost Shaker Way
Daytona Beach
3BR/2BA
| Pending
$475,000
357 S Seneca Boulevard
Daytona Beach
3BR/2BA
| Active
$475,000
3255 S Atlantic Avenue
Daytona Beach
3BR/2BA
| Active

View More Similar Listings >