Carlos Ring
Search Listings

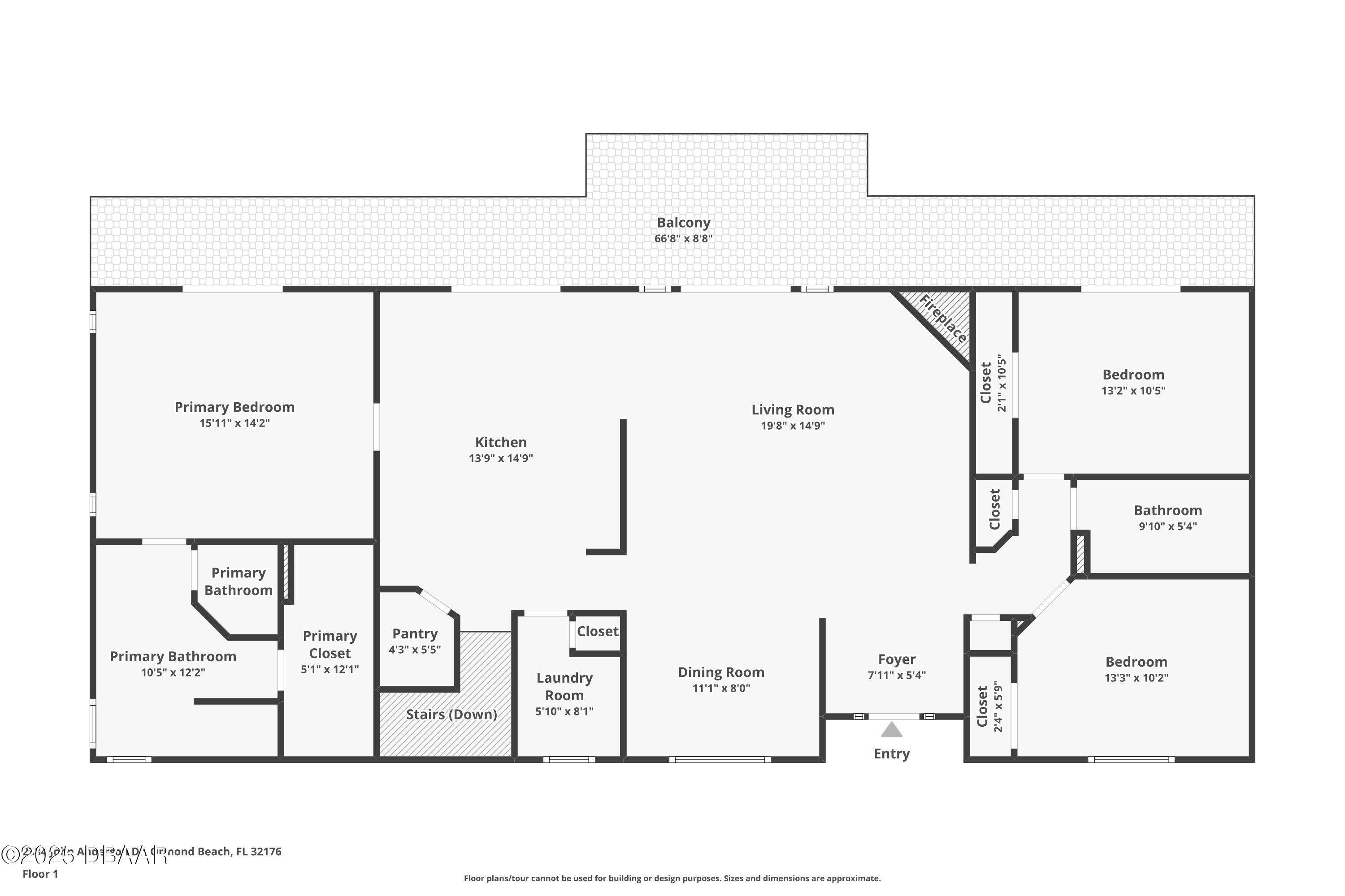
2384 John Anderson Drive, Ormond Beach, FL

NEXT
PREV
$975,000

($555/sqft)

List Status: Active
2384 John Anderson Drive
Ormond Beach, FL 32176


3 beds
2 baths
1758 living sqft
Top Features
  • Frontage: River Access, Seawall, Navigable Water, River Front, Intracoastal
  • View: River
  • Subdivision: Not In Subdivision
  • Built in  1997
  • Single Family Residence
Description
This gorgeous contemporary home sits high above the Intracoastal Waterway on the coveted John Anderson corridor. It offers fabulous panoramic views from a unique elevated vantage point, as if cantilevered over the magnificent Halifax River. Custom-built in 1997 for an owner seeking low-maintenance waterfront living on one lofty level, it includes a cavernous lower-level bonus room. On the spacious main floor, 3 bedrooms and 2 full baths surround a beautiful riverfront great room and fireplace. The living room and dining room are open to the fabulous eat-in kitchen, creating a phenomenal light-filled space beneath vaulted ceilings with multiple French doors opening directly to the new custom Brazilian Walnut (Ipe) waterfront balcony verandah. The primary suite occupies the south end of the home with French doors to the verandah, a spacious walk-in closet, a completely renovated bathroom with desirable raised vanities, a water closet, and a new walk-in marble shower... (2023). Two additional bedrooms share a renovated bath on the opposite side of the home, offering guests privacy in a separate wing. The second bedroom overlooks the water with French doors. The third bedroom views the front garden with a built-in Murphy bed for multi-use options. The gourmet kitchen features new, unused stainless steel refrigerator, dishwasher, and double oven with stone countertops over custom cabinetry, walk-in pantry, breakfast bar, and a waterfront breakfast nook. The pantry/utility room and nearby laundry room flank the kitchen at the top of a short staircase to the 2+ car garage. The adjacent unique 27 by 65; bonus room offers endless possibilities. It could be opened to be a "toy barn" for a vehicle collection or used as a hobby, media, or game room. Beneath the verandah, a new custom-built-in exterior kitchen(2022) features Viking stainless steel appliances (grill, side burner, refrigerator and smoker oven) and a granite countertop. The deepwater dock has a boat lift and wide d
Property Details
Additional Information
Area Major
18 - Ormond-By-The-Sea
Area Minor
18 - Ormond-By-The-Sea
Appliances Other5
Dishwasher, Refrigerator, Electric Range
Bathrooms Total Decimal
2.0
Bathrooms Total Integer
2
Construction Materials Other8
Block
Contract Status Change Date
2025-11-20
Cooling Other7
Electric, Central Air
Current Use Other10
Single Family
Currently Not Used Accessibility Features YN
No
Currently Not Used Bathrooms Total
2.0
Currently Not Used Building Area Total
3865.0, 1758.0
Currently Not Used Carport YN
No
Currently Not Used Garage Spaces
2.0
Currently Not Used Garage YN
Yes
Currently Not Used Living Area Source
Public Records
Currently Not Used New Construction YN
No
Documents Change Timestamp
2025-11-20T16:35:39Z
Exterior Features Other11
Dock, Balcony, Boat Lift, Outdoor Kitchen
Fireplace Features Fireplaces Total
1
Floor Plans Change Timestamp
2025-11-20T16:35:39Z
Flooring Other13
Laminate, Carpet
Foundation Details See Remarks2
Slab
General Property Information Association YN
No
General Property Information CDD Fee YN
No
General Property Information Direction Faces
East
General Property Information Directions
From Granda North on John Anderson to 2384
General Property Information Homestead YN
No
General Property Information List PriceSqFt
554.61
General Property Information Lot Size Dimensions
100.0 ft x 70.0 ft
General Property Information Property Attached YN2
No
General Property Information Senior Community YN
No
General Property Information Stories
1
General Property Information Water Frontage Feet
100
General Property Information Waterfront YN
Yes
Heating Other16
Electric, Central
Interior Features Other17
Eat-in Kitchen, Open Floorplan, Primary Bathroom - Shower No Tub, Ceiling Fan(s), Primary Downstairs, Kitchen Island
Laundry Features None10
In Unit
Levels Three Or More
One and One Half
Listing Contract Date
2025-11-20
Listing Terms Other19
Cash, Conventional
Location Tax and Legal Country
US
Location Tax and Legal Parcel Number
3228-00-02-0160
Location Tax and Legal Tax Annual Amount
14554.7
Location Tax and Legal Tax Legal Description4
28 13 32 N 100 FT OF THAT PART OF LOT 2 LYING W OF & MEAS ON J A HWY & S OF S/L OF OAKVIEW CIRCLE MB 19 PG 256 EXTENDED W & RIP RTS PER OR 4009 PGS 1920-1921 PER OR 7673 PG 4177 PER OR 8182 PG 1091
Location Tax and Legal Tax Year
2025
Lock Box Type See Remarks
Other
Lot Size Area
0.16
Lot Size Square Feet
6969.6
Lot Size Units
Acres
Major Change Timestamp
2025-12-12T23:01:46Z
Major Change Type
Price Reduced
Mls Status
Active
Modification Timestamp
2025-12-12T23:02:05Z
On Market Date
2025-11-20
Other Structures Other20
Outdoor Kitchen
Patio And Porch Features Wrap Around
Deck
Pets Allowed Yes
Cats OK, Dogs OK
Possession Other22
Other
Price Change Timestamp
2025-12-12T23:01:46Z
Property Condition UpdatedRemodeled
Updated/Remodeled
Road Frontage Type Other25
County Road
Road Surface Type Paved
Paved
Roof Other23
Shingle
Room Types Bedroom 1 Level
Main
Room Types Bonus Room Level
Lower
Room Types Kitchen Level
Main
Rooms Total
8
Sewer Unknown
Septic Tank
StatusChangeTimestamp
2025-11-20T16:35:37Z
Utilities Other29
Water Connected, Electricity Connected
Water Source Other31
Public
Neighborhood Map
Popup

Property Photos
Listing Photo
Listing Photo
Listing Photo
Listing Photo
Listing Photo
Listing Photo
Listing Photo
Listing Photo
Listing Photo
Listing Photo
Listing Photo
Listing Photo
Listing Photo
Listing Photo
Listing Photo
Listing Photo
Listing Photo
Listing Photo
Listing Photo
Listing Photo
Listing Photo
Listing Photo
Listing Photo
Listing Photo
Listing Photo
Listing Photo
Listing Photo
Listing Photo
Listing Photo
Listing Photo
Listing Photo
Listing Photo
Listing Photo
Listing Photo
Listing Photo
Listing Photo
Listing Photo
Listing Photo
Listing Photo
Listing Photo
Listing Photo
Listing Photo
Listing Photo
Listing Photo
Listing Photo
Listing Photo
Listing Photo
Listing Photo
Listing Photo
Listing Photo
Listing Photo
Listing Photo
Listing Photo
Listing Photo
Listing Photo
Listing Photo
Listing Photo
Listing Photo
Listing Photo
Listing Photo
Listing Photo
Listing Photo
Listing Photo
Listing Photo
Listing Photo
Listing Photo
Listing Photo
Listing Photo
Listing Photo
Listing Photo
Listing Photo
Listing Photo
Listing Photo
Listing Photo
Listing Photo
Listing Photo
Listing Photo
Listing Photo
Listing Photo
Listing Photo
Listing Photo
Listing Photo
Listing Photo
Listing Photo
Listing Photo
Listing Photo
Listing Photo
Listing Photo
Listing Photo
Listing Photo
Listing Photo
Listing Photo
Listing Photo
Listing Photo
Listing Photo
Listing Photo
Listing Photo
Listing Photo
Listing Photo
Listing Photo
Listing Photo
Listing Photo
Listing Photo
Listing Photo
Listing Photo
Listing Photo
Listing Photo
Listing Photo
Listing Photo
Listing Photo
Listing Photo
Listing Photo
Listing Photo
Listing Photo
Listing Photo
Listing Photo
Listing Photo
Listing Photo
Listing Photo
Listing Photo
Listing Photo
Listing Photo
Listing Photo
Listing Photo
Listing Photo
Listing Photo
Listing Photo
Listing Photo
Listing Photo
Listing Photo
Listing Photo
Listing Photo
Listing Photo
Listing Photo
Listing Photo
Listing Photo
Listing Photo
Listing Photo
Listing Photo
Listing Photo
Listing Photo
Listing Photo
Listing Photo
Listing Photo
Listing Photo
Listing Photo
Listing Photo
Listing Photo
Listing Photo
Listing Photo
Listing Photo
Listing Photo

MLS #1220207 Listing courtesy of Realty Pros Assured provided by Daytona Beach Area Association Of REALTORS.

Similar Listings

$925,000
1680 Old Tomoka Road
Ormond Beach
3BR/2BA
| Active
$930,000
7 Tarpon Avenue
Ormond Beach
3BR/2BA
| Active
$949,000
1076 Shockney Drive
Ormond Beach
3BR/2BA
| Active
$950,000
1648 Old Tomoka Road
Ormond Beach
3BR/2BA
| Active

View More Similar Listings >